Добрый день, прибор ТВ7М, опрос через IRZ RL21. Помогите разобраться почему не считывает суточный и месячный архив по Тепловой энергии . Если снимать напрямую с прибора то данные есть. Предполагаю, что не привязаны ячейки, но какие, не могу понять.
Что вы подразумеваете под снятием данных напрямую с прибора учета? Опрос через COM-порт, к которому подключен прибор?
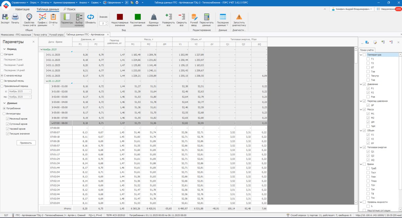
Покажите скриншот таблицы с данными, приложенный ранее, на котором окно Рабочего места оператора видно полностью. Также опросите суточные данные прибора за тот же период и через то же самое подключение, что и в ЛЭРС УЧЕТ. Покажите ее скриншот с результатами этого опроса.
Напрямую имею ввиду , если флешкой данные снять с тв7 , то там есть суточные и месячные показания по тепловой энергии. А через лэрс идут только текущие, а архив месячные суточные не снимает
Скриншоту смогу приложить завтра.
Хорошо, ожидаем запрошенные скриншоты.
Приношу извинения. Неточно выразился. В данном случае имелось ввиду провести опрос заводской программой. Приведу скорректированный вариант своего сообщения:
Также опросите суточные данные прибора заводской программой за тот же период и через то же самое подключение, что и в ЛЭРС УЧЕТ. Покажите ее скриншот с результатами этого опроса.
Пожалуйста, покажите запрошенные результаты опроса заводской программой.
Ещё раз в Лэрсе опросил Точку учёта в режиме Ручного опроса, с подставленной в ячейке deltaQ параметром Qтв ТВ1, и данные появились, и они совпадают с теми, что я Вам отправил в файлах (1,2) выше.
Судя по всему вы привязали ячейку “Qтв ТВ1” к параметру “dQ” точки учета уже после того, как считали рассматриваемые суточные записи. В подобных случаях стоит производить переопрос данных ручным опросом с отключенной галочкой “Только недостающие данные”, что вы судя по всему и сделали.
Я правильно понимаю, вы решили ваш вопрос?
Да, вопрос снят. Ячейка была привязана сразу, я думал в режиме автоопроса данные обновятся, а нужно было делать Ручной переопрос





